V roce 2024 bude dokončeno 13 bytů v třípodlažním domě s revitalizovaným základem prvního nadzemního podlaží a v letech 2023 a 2024 nově dostaveným druhým a třetím podlažím. Byty jsou v dispozicích od 1+KK, 2+KK s lodžií po mezonety 3+KK s terasou v nejvyšším patře a mají bytovou plochu od 28 do 85 m2.
V přízemí objektu je bezbariérový byt 1+KK s obytnou plochou 47 m2 a vlastním bezbariérovým vstupem.
Ke všem bytům je venkovní parkovací stání a sklepní kóje. Celý objekt je zateplený s ekologickým a nezávislým vytápěním.
“Jako Českokamenický resident chci místním i novým obyvatelům nabídnout atraktivní, moderní a kvalitní bydlení v pestré škále bytových dispozic a ploch, aby si každý mohl vybrat a vytvořit si příjemný domov v České Kamenici,” říká Ing. Jaroslav Leska, zástupce investora a pronajímatele bytů.
| Č. bytu | Patro | Dispozice | Půdorys | Velikost m2 | Parkování | Terasa | Lodžie | Poznámka | Dostupnost |
|---|---|---|---|---|---|---|---|---|---|
| 1 | 1. NP | 2+KK | Zobrazit | 47 | ANO | NE | NE | REZERVOVANÝ | |
| 2 | 1. NP | 1+KK | Zobrazit | 28 | ANO | NE | NE | VOLNÝ | |
| 3 | 1. NP | 1+KK | Zobrazit | 31 | ANO | NE | NE | VOLNÝ | |
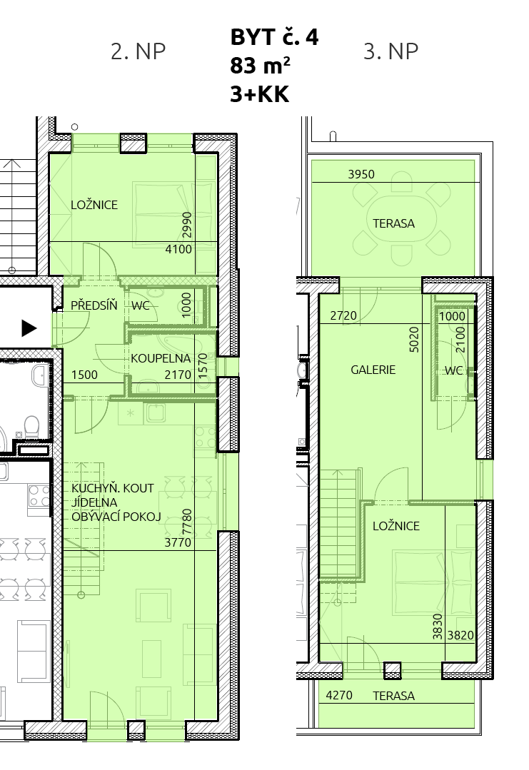
| 4 | 2. a 3. NP | 3+KK | Zobrazit | 83 | ANO | 11 m2 | NE | mezonet | REZERVOVANÝ |
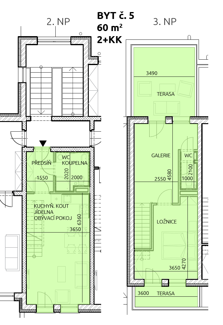
| 5 | 2. a 3. NP | 2+KK | Zobrazit | 60 | ANO | 13,5 m2 | NE | mezonet | REZERVOVANÝ |
| 6 | 2. NP | 3+KK | Zobrazit | 83 | ANO | NE | ANO | REZERVOVANÝ | |
| 7 | 1. NP | 3+KK | Zobrazit | 78 | ANO | NE | NE | REZERVOVANÝ | |
| 8 | 1. NP | 1+KK | Zobrazit | 28 | ANO | NE | NE | VOLNÝ | |
| 9 | 1. NP | 2+KK | Zobrazit | 47 | ANO | NE | NE | REZERVOVANÝ | |
| 10 | 2. NP | 3+KK | Zobrazit | 83 | ANO | NE | ANO | VOLNÝ | |
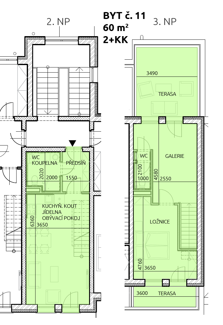
| 11 | 2. a 3. NP | 2+KK | Zobrazit | 60 | ANO | 13,5 m2 | NE | mezonet | REZERVOVANÝ |
| 12 | 2. a 3. NP | 3+KK | Zobrazit | 83 | ANO | 11 m2 | NE | mezonet | REZERVOVANÝ |
| 13 | 1. NP | 1+KK | Zobrazit | 47 | ANO | NE | NE | bezbariérový byt | REZERVOVANÝ |
Historické město Česká Kamenice leží 20 minut autem od Děčína v krásné přírodě na rozhraní tří CHKO: Lužické hory, Labské pískovce a České středohoří. Blízký Národní park České Švýcarsko je významnou přírodní i turistickou destinací. Budova s byty se nachází cca 10 minut chůze od centra města.
Veškerá občanská vybavenost je “na dosah ruky”: mateřská, základní i umělecká škola, gymnázium, zdravotní středisko a dva supermarkety i několik restaurací. Lze si užít koupaliště, sportovní halu nebo si vyjít do parku či na zříceninu hradu Kamenice na Zámeckém vrchu.
Samozřejmostí je výborná dopravní obslužnost vlakem i autobusem. Dojezdové vzdálenosti autem do okolních větších měst jsou také příznivé: 20 minut do Děčína, 25 minut do České Lípy, 30 minut do Varnsdorfu, 40 minut do krajského města Ústí n. Labem, 60 minut do krajského města Liberce. Do německého lázeňského města Bad Schandau dojedete za 40 minut.